Renoviertes Bauernhaus mit Scheune- viel Raum für Kreativität
Beschreibung:
Dieses schöne Bauernhaus, das an eine Scheuer angrenzt, bietet viel Platz für Ihre Kreativität.Über die großzügige Diele mit angrenzendem Flur haben Sie Zugang zu den Zimmern des Erdgeschosses. Gleich rechts vom Eingang befindet sich das Wohnzimmer, welches Ihnen viel Platz bietet, um hier Zeit mit der Familie zu verbringen. Durch die großen Fenster wirkt der Raum hell und einladend. Anschließend kommen Sie in das erste der vielen Schlafzimmer, welches selbstverständlich auch als Gäste- oder Arbeitszimmer nutzbar ist. Gegenüber vom Wohnzimmer befindet sich die Küche mit Essbereich, in der Sie ihren Kochkünsten freien Lauf lassen können. Ein Ofen gibt der Küche gleich eine gemütlichere Atmosphäre.
Weiter über den Flur kommen Sie in eine Garderobe, welche gleichzeitig als Durchgangszimmer für das Gäste WC dient. Nebenan befindet sich die Speisekammer.
Weiter führt der Flur in ein Technikzimmer, der Ihnen weitere Abstellfläche bietet und eine Dusche beinhaltet. Hier können sie über einen separaten Eingang Ihren Hund nach dem Gassi gehen abduschen oder nach der Gartenarbeit sich säubern, bevor Schmutz in den Wohnraum gelangt.
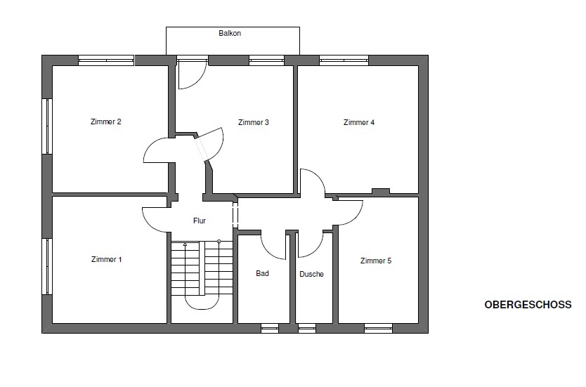
Über die Treppe kommen Sie in den Flur des Obergeschosses, von wo aus Sie alle fünf Schlafzimmer sowie Bad und eine separate Dusche erreichen können. Das Bad ist ausgestattet mit einer Toilette, einer Badewanne und einem Waschbecken.
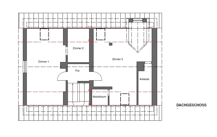
Oben im ausgebauten Dachgeschoss befinden sich nochmals zwei großzügige Schlafzimmer mit jeweils angrenzenden Ankleidezimmern. Ebenfalls gibt es hier eine kleine Abstellkammer, die Sie für Ihre Koffer oder Ähnliches nutzen können. Auch hier befindet sich genauso wie im Erdgeschoss auf der rechten Seite ein Ofen. Dieser lässt das Schlafzimmer noch gemütlicher erscheinen.
Das Haus wurde 2012/2013 neu ausgestattet mit:
- neuem Dach
- neue Außenfassade mit Dämmung
- neue Fenster
- Dachgeschoss-Ausbau
- neue Zimmertüren
Zudem befindet sich auf dem Grundstück im hinteren Garten ein schönes großes Gartenhaus zum Wohlfühlen, inkl. funktionsfähigem WC .
Lagebeschreibung:
Das Einfamilienhaus befindet sich in der Gemeinde Burtenbach, einem Ort voller Potenzial und positiver Eigenschaften.Die Umgebung ist von charmanten Altbauten geprägt, die eine gewisse historische Atmosphäre vermitteln. Die geringe Bevölkerungsdichte in der unmittelbaren Nachbarschaft bietet viel Privatsphäre und Raum zum Entfalten. Es herrscht eine heimelige Atmosphäre, in der Nachbarn einander kennen und sich gegenseitig unterstützen.
Die Dienstleistungsqualität ist durchschnittlich, aber es gibt Schulen in Gehdistanz, was für Familien mit Kindern sehr praktisch ist. Auch die Anbindung an das öffentliche Verkehrsnetz ist gut, mit mehreren Haltestellen in der Nähe des Hauses.
Für Naturliebhaber bietet die Lage eine gute Nähe zu Grünflächen, einem Wald und einem See, was Möglichkeiten für Freizeitaktivitäten und Naherholung bietet.
Insgesamt bietet dieses Haus in der Rosengasse ein angenehmes und vielversprechendes Wohnumfeld, das sowohl Komfort als auch naturnahe Möglichkeiten zur Entspannung bietet.
Ausstattung:
- Hot water included
Energieausweis:
- A+
- A
- B
- C
- D
- E
- F
- G
- H
- Year of construction:
- 1960
- Final energy demand:
- 127,17 kWh/(m²a)
- Energy certificate:
- Requirement-oriented certificate
- Energy efficiency class:
- D
- Energy certificate valid until:
- 14.07.2032
- Year of construction according to energy certificate:
- 1960
- Main energy source:
- Oil
Ausstattungsbeschreibung:
*HIGHLIGHTS der Immobilie*- Riesiges Grundstück mit 2729,00m²
- 1 Scheune
- Gartenhaus inkl. WC
- Photovoltaikanlage auf dem großen Scheunendach





















