Sanierungsbedürftiges zentrales Wohn- und Geschäftsgebäude
Beschreibung:
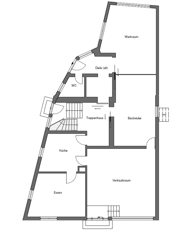
Das angebotene Wohn- und Geschäftshaus, aus dem Jahre 1890, befindet sich im Herzen von Wilhelmsdorf, in sehr zentraler Lage. Im Erdgeschoss befindet sich ein Ladengeschäft mit zwei zusätzlichen Räumen, die für den jeweiligen Zweck flexibel nutzbar sind. Weitere Räume im Erdgeschoss sind eine Küche mit Aufenthaltsraum und ein WC.Das Objekt ist optimal für die Verbindung von Arbeiten und Wohnen geeignet. Durch die Aufteilung und den seitlichen Eingang kann das Ladengeschäft mit seinen Räumlichkeiten, aber auch unabhängig der Wohnräume, verpachtet und dadurch zusätzliche Einnahmen generiert werden.
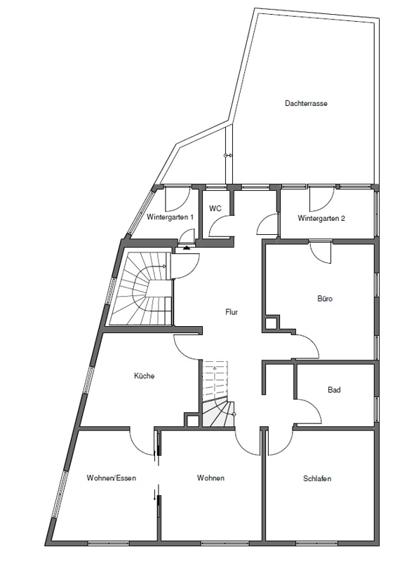
Im Obergeschoss beginnt der Wohnraum für die ganze Familie. Ein großzügiger Wohn- und Essbereich, daran anschließend die geräumige Küche, zwei Schlafzimmer, ein Badezimmer mit separatem WC. Die Dachterrasse mit zwei Loggien runden das Obergeschoss ab. Von der weitläufigen Diele gelangt man über die Treppe ins Dachgeschoss. Dort befinden sich neben sechs weiteren kleinen und größeren Räumen ein weiteres WC. Insgesamt verfügt der Wohnbereich über 191 m² Wohnfläche fürs Miteinander und bietet gleichzeitig genug Platz für die Privatsphäre.
Im Keller befindet sich der Hausanschlussraum und weitere vier Räume die als Abstellfläche, Vorratsräume oder auch Werkstatt genutzt werden können.
Direkt hinter dem Haus ist der Garten, der Platz für ein Trampolin oder Spielgerät, zum Abhängen oder Entspannen bietet. Viele weitere Details entsprechen exakt den Bedürfnissen und Ansprüchen einer modernen Familien.
Konnten wir Ihr Interesse wecken? Dann rufen Sie uns noch heute an und vereinbaren einen Besichtigungstermin mit uns!
Lagebeschreibung:
Die Gemeinde Wilhelmsdorf, bestehend aus den vier Hauptteilorten Wilhelmsdorf, Zußdorf, Pfrungen und Esenhausen, ist in vielerlei Hinsicht ein außergewöhnlicher Ort. Durch eine Vielzahl sozialer Einrichtungen leben und arbeiten hier viele Menschen mit und ohne Behinderung in einem bunten und guten Miteinander. Ein attraktives Einzelhandelsangebot schafft Einkaufserlebnisse auf kurzem Weg. Das umfassende Betreuungs- und Bildungsangebot von Kindertagesstätten, Grundschule, Realschule und Gymnasium bieten gerade für Familie mit Kindern ein breites Angebot.Die 5000 Einwohnergemeinde liegt im Landkreis Ravensburg (Entfernung ca. 20 km) und ist ca. 35 Minuten vom Bodensee entfernt. Die Buslinien des Verkehrsbundes Bodensee-Oberschwaben verbinden Wilhelmsdorf mit Altshausen und Ravensburg. Gute Anbindung an das Straßennetz bieten die Bundesstraßen 23 und 33 in der Nähe von Ravensburg.
Ausstattung:
- Hot water included
Energieausweis:
- A+
- A
- B
- C
- D
- E
- F
- G
- H
- Year of construction:
- 1890
- Final energy demand:
- 360,16 kWh/(m²a)
- Energy certificate:
- Requirement-oriented certificate
- Energy efficiency class:
- H
- Energy certificate valid until:
- 18.01.2033
- Year of construction according to energy certificate:
- 1890
- Main energy source:
- Oil
Ausstattungsbeschreibung:
- Großzügiger Garten mit entlangfließendem Mühlbach- In den 80er-Jahren wurde es modernisiert und erweitert
- Die Fenster sind 2005 im Obergeschoss erneuert worden
- Das Ladengeschäft wird aktuell verpachtet
Sonstige Angaben:
*Die Informationen in diesem Exposé beruhen auf Angaben, die wir vom Veräußerer und / oder Dritten erhalten haben. Für deren Richtigkeit und Vollständigkeit übernehmen wir keine Haftung.*Zwei Bilder wurden mit Digital Staging bearbeitet.









