Einfamilienhaus auf 1.181 m² Grundstück in zentraler Lage von Waiblingen mit Gewerbeoption
Beschreibung:
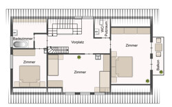
Dieses Einfamilienhaus ist eine seltene Gelegenheit für alle, die zentrale Lage, außergewöhnliche Grundstücksgröße und vielseitige Nutzungsmöglichkeiten miteinander verbinden möchten. Auf einem beeindruckenden Grundstück von 1.181 m² gelegen, eröffnet die Immobilie mitten in Waiblingen ein Maß an Freiheit, das in dieser Lage nur noch selten zu finden ist. Trotz der zentralen Anbindung genießen Sie hier Platz, Ruhe und Privatsphäre – ein echtes Alleinstellungsmerkmal.Schon beim Eintreten entfaltet das Haus seine Großzügigkeit. Das Erdgeschoss bildet den lebendigen Mittelpunkt des Hauses: Die separat gelegene Küche ist ein ruhiger Ort für Genuss und Kreativität, während sich das weitläufige Wohn- und Esszimmer als Herzstück des Zusammenlebens öffnet. Großzügige Fenster lassen viel Licht herein und schaffen eine warme, einladende Atmosphäre. Von hier aus führt der Weg auf die rund 50 m² große, teilweise überdachte Terrasse mit Kamingrill – ein besonderer Rückzugsort für lange Sommerabende, gesellige Runden mit Familie und Freunden oder entspannte Stunden im Freien. Der Garten selbst ist vom Wohnbereich getrennt und ebenerdig über das Untergeschoss erreichbar, was dem Außenbereich eine angenehme Ruhe und klare Struktur verleiht.
Zwei weitere Zimmer auf dieser Ebene bieten flexible Nutzungsmöglichkeiten: Ob Arbeiten von zu Hause, Gästezimmer oder Spielzimmer – hier passt sich der Grundriss Ihren Bedürfnissen an. Ein separates WC ergänzt das Raumangebot auf dieser Etage sinnvoll.
Rückzugsorte im Obergeschoss
Im Obergeschoss setzt sich das großzügige Wohngefühl fort. Drei Schlafzimmer bieten ausreichend Platz für Familie und individuelle Rückzugsräume. Das Tageslichtbad mit Badewanne und Dusche lädt zum Entspannen ein, während ein zusätzliches WC den Komfort auf dieser Ebene erhöht – ideal für den Familienalltag.
Viel Raum für Ideen im Untergeschoss
Das Untergeschoss eröffnet ein außergewöhnliches Potenzial: Die hellen Souterrain-Räume könnten bei Bedarf zu einem erweiterten Wohnbereich ausgebaut oder alternativ als Firmen- bzw. Büroräume genutzt werden. Große Türen, zahlreiche Fenster sowie die bequeme Anfahrt- und Parkmöglichkeit im Hof schaffen hierfür ideale Voraussetzungen.
Ein großer Hobbyraum bietet Raum für kreative Projekte, sportliche Aktivitäten oder auch eine gewerbliche Nutzung, etwa als Atelier, Büro oder Werkstatt (je nach Genehmigung).
Ergänzt wird diese Ebene durch eine Waschküche, drei weitere Kellerräume sowie einen besonderen Gewölbekeller mit gestampftem Naturlehmboden. Dank angepasster Luftfeuchtigkeit und ganzjährig konstanter Temperatur eignet sich dieser ideal zur Lagerung von Wein.
Grundstück & Lage – eine seltene Kombination
Das 1.181 m² große Grundstück ist die herausragende Besonderheit dieser Immobilie. In zentraler Lage von Waiblingen bietet es eine Größe, die heute kaum noch verfügbar ist. Ob Gartenliebhaber, Familien mit Platzbedarf oder Käufer mit Visionen für Erweiterung, Ruheflächen oder repräsentative Außenbereiche – hier stehen Ihnen alle Möglichkeiten offen. Zwei Garagen runden das Angebot ab.
Zustand & Entwicklungspotenzial
• Dach: nicht gedämmt, sanierungsbedürftig
• Heizung: Ölheizung aus dem Jahr 1989
• Solide Grundsubstanz mit großem Potenzial zur individuellen Modernisierung
Fazit
Dieses Haus vereint zentrale Lage, außergewöhnliche Grundstücksgröße und flexible Nutzungsmöglichkeiten in idealer Weise. Es richtet sich an Käufer, die das Besondere suchen und bereit sind, mit Modernisierungsmaßnahmen ein individuelles Zuhause oder ein kombiniertes Wohn- und Arbeitskonzept in einer der gefragtesten Lagen Waiblingens zu realisieren.
Lagebeschreibung:
Die Lage verbindet ein ruhiges Wohnumfeld mit kurzen Wegen im Alltag. In der direkten Umgebung finden sich mehrere Haltestellen, sodass Wege zur Schule, zum Einkauf oder in die Innenstadt unkompliziert ohne Auto möglich sind.Alltag und Nahversorgung
Für den täglichen Bedarf ist vieles schnell erreichbar. Supermärkte wie Norma und PENNY liegen in der Nähe, ebenso mehrere Drogerien wie dm, Müller und Rossmann. Damit sind Einkäufe, Besorgungen und spontane Erledigungen gut in den Tagesablauf integrierbar.
Kinderbetreuung und Schule
Für Familien ist die Umgebung besonders praktisch: Der Kindergarten Pusteblume liegt fußläufig, ebenso das Salier Schulzentrum. Auch ein Spielplatz befindet sich ganz in der Nähe, sodass Kinder draußen spielen können, ohne dass lange Wege nötig sind.
Freizeit und Grün
Für Bewegung und Ausgleich bieten die Talaue und die Brühlwiesen angenehme Grünflächen in der Nähe. Ob Spaziergang, Laufrunde oder Zeit im Freien mit Kindern, hier gibt es passende Möglichkeiten. Ergänzend stehen mit der Salier Sporthalle weitere Angebote für Sport und Vereinsleben in der Umgebung zur Verfügung.
Anbindung und Mobilität
Die nächste Bushaltestelle Am Kätzenbach ist in wenigen Schritten erreichbar. Der Waiblingen Bahnhof liegt ca. 2 km entfernt und bietet eine gute Anbindung Richtung Stuttgart und in die Region.
Mit dem Auto ist die B14 in wenigen Minuten erreichbar, die Autobahnen A81 und A8 liegen je nach Route in etwa 15 bis 25 km Entfernung. Der Flughafen Stuttgart ist ebenfalls gut erreichbar und liegt in etwa 20 km Entfernung.
Insgesamt bietet die Lage kurze Wege, viel Grün und eine alltagstaugliche Infrastruktur, die sich besonders für ein entspanntes Wohnen mit Kindern eignet.
Ausstattung:
- Hot water included
Energieausweis:
- A+
- A
- B
- C
- D
- E
- F
- G
- H
- Year of construction:
- 1939
- Final energy demand:
- 286,6 kWh/(m²a)
- Energy certificate:
- Requirement-oriented certificate
- Energy efficiency class:
- H
- Energy certificate valid until:
- 27.01.2036
- Year of construction according to energy certificate:
- 1989
- Main energy source:
- Oil
Ausstattungsbeschreibung:
• Großzügiges Einfamilienhaus auf ca. 1.181 m² großem Grundstück• Zentrale Lage mit seltenem Platzangebot
• Großzügige Hofeinfahrt mit Hofbereich
• Helles, weitläufiges Wohn- und Esszimmer
• Separate Küche
• Ca. 50 m² große, teilweise überdachte Terrasse mit Kamingrill
• 5 flexibel nutzbare Zimmer
• Tageslichtbad mit Wanne und Dusche
• Zusätzliches WC im OG und UG sowie Gäste-WC im EG
• Großer Hobbyraum mit vielseitigen Nutzungsmöglichkeiten, Ausbau als Wohn- oder Gewerbebereich möglich
• Waschküche, mehrere Kellerräume & Gewölbekeller mit gestampftem Naturlehmboden ideal z.B. zur Weinlagerung
• Garten ebenerdig vom Untergeschoss erreichbar
• 2 Garagen
• Hohes Potenzial für individuelle Modernisierung
Sonstige Angaben:
Stellen Sie eine Anfrage und wir stellen Ihnen gerne einen 360° Rundgang des EG und OG zur Verfügung.*Die Informationen in diesem Exposé beruhen auf Angaben, die wir vom Veräußerer und / oder Dritten erhalten haben. Für deren Richtigkeit und Vollständigkeit übernehmen wir keine Haftung.
Sie wollen mehr erfahren?
Wenn Sie uns eine Nachricht über das Kontaktformular senden, melden wir uns schnellstmöglich bei Ihnen:





















